Hebeschiebetüren aus Kunststoff

HomeFensterHebeschiebetüren

Stadler Fenster und Türen ist seit 1968 Ihr Fachbetrieb für stilvolle Fenster und Türen aus hochwertigen Materialien.

Exklusive Hebeschiebetüren vom Spezialisten Zeitgemäßes Design, höchster Komfort, konsequente Funktionalität und kompromisslose Qualität - die exklusiven SCHMIDT Hebeschiebetüren aus Kunststoff mit ihren schlanken, barrierefreien Profilen in nahezu allen Farbnuancen dienen als architektonische Gestaltungselemente. Drinnen und Draußen verschmelzen: Der Raum wächst, die Natur hält Einzug und die Wohnqualität steigt. SCHMIDT Hebeschiebetüren überzeugen durch ausgereifte Sicherheitstechnik und bieten sehr guten Wärme- und Schallschutz bis hin zur Passivhaustauglichkeit. Unsere zwei Systemvarianten fertigen wir exakt nach den individuellen Maßgaben der Kunden - in vielfältigen Ausführungen mit je zwei bis vier Flügeln.

System QuinLine® 74
System QuinLine® 84
eVOMATIC®

System QuinLine® 74 - Der neue Maßstab unter den 70er Systemen

Das technisch revolutionäre 5-Kammer-Profilsystem QuinLine 74 steht für höchsten Wohnkomfort und außerordentliche Energieeffizienz.
Mit seinen exzellenten Leistungseigenschaften bietet es völlig neue Möglichkeiten im breiten Anwendungsspektrum von der Bestandssanierung bis zum Neubau von Niedrigenergie-Gebäuden.

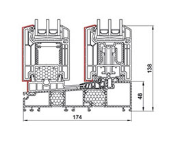
  • Flügelbautiefe 74 mm; Zargenbautiefe 174 mm
  • Rahmen-Wärmedurchgangskoeffizient Uf =1.5 W/(m²K)
  • Aufnahmekapazität für Isoliergläser bis 46 mm Dicke
Stadler Innentueren Hebeschiebestueren System QuinLine 74
  • Energieeffizientes 5-Kammer-Profilsystem
  • Hervorragende Wärmedämmung - Uw bis 0,82 W/(m²K) möglich
  • Aufnahme von Funktionsgläsern bis 46 mm Dicke
  • Schlankes, zeitloses Flügeldesign mit 88 mm Profilansicht
  • Barrierefreiheit durch flache Aluminium-Bodenschwelle
  • Thermische Trennung der Schwelle und der Zargenarmierung
  • Thermisch getrenntes Stahlprofil im Festflügel
  • Wärmedämmprofil zwischen Festflügel und Aufbauprofil
  • Stabile, geschlossene Stahlarmierung für statische Sicherheit
  • Profil-Wanddicken mit höchstem Qualitätsstandard (RAL-Klasse A)
  • Hochwertige EPDM-Dichtungen mit hervorragender Dichtfunktion
  • Höchste Dichtigkeit bei extremem Schlagregen
  • ift-Rosenheim geprüfte Sicherheitsstufen WK 1 bis WK 3 / RC 1N bis RC 3
  • Qualitätshochleistungsfolie für farbstabile und lange Lebensdauer
  • Alu-Vorsatzschalen mit pulverbeschichteter oder eloxierter Oberfläche

Wärmedurchgangskoeffizienten Uw-Werte

System QuinLine® 74
Ausführung 2-tIg. Hebeschiebetür

Verglasung Ug-Wert [W/(mK)] 1,1 1,0 0,9 0,8 0,7 0,6 0,5
Randverbund
Aluminium 1,3 1,2 1,2 1,1 1,0 0,94 0,87
Warmrandverbund 1,3 1,2 1,1 1,0 0,96 0,89 0,82

Berechnung entsprechend DIN EN ISO 10077; Tür: 3,00 x 2,20 m;
Ages. 6,6 m²; mittlerer Rahmen-U-Wert: U(f, m) = 1,5 W/(m²K)
*= Ug-Wert nach EN 673, EN 674

Die angegebenen Werte können je nach Fabrikat des Randverbundes abweichen.

Das Profilsystem - Perfekt geschnitten

Flügel
  • 5-Kammer-Profil Bautiefe 74 mm Ansicht 88 mm
  • Glasdicken bis 46 mm
  • 3 Dichtungsebenen im oberen Schiebeflügelbereich
  • Thermisch getrennte Stahlarmierung im Festflügel
Stadler Innentueren Hebeschiebestueren Flügel
Zarge
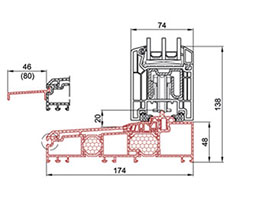
  • Bautiefe 174 mm Ansicht 63 mm
  • Thermische Trennung der Aluminium-Verstärkung
  • Kraftschlüssige Eckverbindung durch zwei Schraubkanäle
  • Sichere Befestigung von Zusatzprofilen an der Außenseite
Stadler Innentueren Hebeschiebestueren Zarge
Bodenschwelle
  • 5-Kammer-Profil Bautiefe 174 mm Ansicht 48 mm
  • Aluminium-Schwelle mit duothermischer Trennung
  • Barrierefreie Ausführung nach DIN 18040 bauseits möglich
  • Optionale Alu-Vorsatzschwelle mit 46 oder 80 mm Ausladung
Stadler Innentueren Hebeschiebestueren Bodenschwelle
Alu-Vorsatzschale
  • Individuelle Farbgestaltungsmöglichkeit; edle Anmutung
  • Pflegeleichtes und extrem witterungsbeständiges Profilsystem
  • Ausgereifte Klemmtechnik; Stumpfer Stoß im Eckbereich
  • Ausführung ähnelt der Bauart traditioneller Holzfenster
Stadler Innentueren Hebeschiebestueren Alu-Vorsatzschale

System QuinLine® 84 - Die neue Dimension der Hebeschiebetür

Das zukunftsweisende 5-Kammer-Profilsystem QuinLine® 84 liefert eine perfekte Energiebilanz und eröffnet durch ein Höchstmaß an Stabilität auch bei deckenhohen Elementen eine neue Dimension des modernen, umweltfreundlichen Wohnens. Die innovative Konstruktion erzielt überragende Wärmedämmwerte - bis hin zur Passivhaustauglichkeit.

  • Flügelbautiefe 84 mm; Zargenbautiefe 198 mm
  • Rahmen-Wärmedurchgangskoeffizient Uf -1.3 W/(m²K)
  • Aufnahmekapazität für Isoliergläser bis 50 mm Dicke
Stadler Innentueren Hebeschiebestueren System QuinLine 84

Vorteile auf einen Blick

  • Passivhaustaugliches 5-Kammer-Profilsystem
  • Maximale Wärmedämmung - uw bis 0,71 W/(m²K) möglich
  • Schlankes Flügeldesign mit 95 mm Profilansicht
  • Barrierefreiheit durch flache Aluminium-Bodenschwelle
  • Duothermische Trennung der Schwelle und der Zargenarmierung
  • Thermisch getrenntes Stahlprofil im Festflügel
  • Wärmedämmprofil zwischen Festflügel und Aufbauprofil
  • Großdimensionierte Stahlprofile für deckenhohe Elemente
  • Profil-Wanddicken mit höchstem Qualitätsstandard (RAL-Klasse A)
  • Hochwertige EPDM-Dichtungen mit hervorragender Dichtfunktion
  • Höchste Dichtigkeit bei extremem Schlagregen
  • ift-Rosenheim geprüfte Sicherheitsstufen WK 1 bis WK 3 / RC 1N bis RC 3
  • Qualitätshochleistungsfolie für farbstabile und lange Lebensdauer
  • Alu-Vorsatzschalen mit pulverbeschichteter oder eloxierter Oberfläche

Wärmedurchgangskoeffizienten Uw-Werte

System QuinLine® 84
Ausführung 2-tIg. Hebeschiebetür

Verglasung Ug-Wert [W/(mK)] 1,1 1,0 0,8 0,7 0,6 0,5 0,4
Randverbund
Aluminium 1,3 1,2 1,1 0,98 0,91 0,83 0,76
Warmrandverbund 1,2 1,1 1,0 0,93 0,85 0,76 0,71

Berechnung entsprechend DIN EN ISO 10077; Tür: 3,00 x 2,20 m;
Ages. 6,6 m²; mittlerer Rahmen-U-Wert: U(f, m) = 1,3 W/(m²K)
*= Ug-Wert nach EN 673, EN 674

Die angegebenen Werte können je nach Fabrikat des Randverbundes abweichen.

Das Profilsystem - Perfekt geschnitten

Flügel
  • 5-Kammer-Profil Bautiefe 84 mm Ansicht 95 mm
  • Glasdicken bis 50 mm
  • 3 Dichtungsebenen im oberen Schiebeflügelbereich
  • Thermisch getrennte Stahlarmierung im Festflügel
Stadler Innentueren Hebeschiebestueren Flügel 84
Zarge
  • Bautiefe 198 mm Ansicht 63 mm
  • Duothermische Trennung der Aluminium- Verstärkung
  • Kraftschlüssige Eckverbindung durch drei Schraubkanäle
  • Sichere Befestigung von Zusatzprofilen an der Außenseite
Stadler Innentueren Hebeschiebestueren Zarge 84
Alu-Vorsatzschale
  • Individuelle Farbgestaltungsmöglichkeit; edle Anmutung
  • Pflegeleichtes und extrem witterungsbeständiges Profilsystem
  • Ausgereifte Klemmtechnik: Stumpfer Stoß im Eckbereich
  • Ausführung ähnelt der Bauart traditioneller Holzfenster
Stadler Innentueren Hebeschiebestueren Alu-Vorsatzschale 84
Bodenschwelle
  • 5-Kammer-Profil Bautiefe 198 mm Ansicht 48 mm
  • Aluminium-Schwelle mit duothermischer Trennung
  • Barrierefreie Ausführung nach DIN 18040 bauseits möglich
  • Optionale Aluminium-Vorsatzschwelle mit 46 oder 80 mm Ausladung
Stadler Innentueren Hebeschiebestueren Bodenschwelle 84

eVOMATIC® - Die unsichtbare Komfortrevolution

Der automatische Antrieb eVOMATIC® ist für das Hebeschiebetüren-System QuinLine® 84 in Funktion und Design eine echte Komfortrevolution. Die optional erhältliche, innovative Antriebstechnik ist für den Nutzer unsichtbar in die Profilkonstruktion eingebunden und lässt sich ebenso einfach wie sicher in kürzester Zeit in Betrieb nehmen. Gesteuert wird die eVOMATIC®-Funktion wahlweise über ein selbsterklärendes Bedien-element am Schiebeflügel oder eine Funkfernbedienung. Mit dieser neuartigen Technologie lassen sich die Hebeschiebetüren per Knopfdruck nahezu geräuschlos und schwebeleicht öffnen und schließen.

Stadler Innentueren Hebeschiebestueren EVOMATIC Bedienung

Bedienung

  • Intuitive Betätigung über drei Tastenfelder Öffnen, Stoppen und Schließen
  • Auf Wunsch über Funkfernbedienung möglich
  • Bedienelement mit ansprechendem Design
  • Oberfläche: weiß und EV1
  • Optional mit Profilzylinder abschließbar
Stadler Innentueren Hebeschiebestueren EVOMATIC Steuerung

Stromversorgung und Steuerung

  • Stromanschluss durch 230 V - Stecker
  • Rahmenseitiges Netzteil mit 24 V - Stromübertrager
  • Zwei 24 V-Akkus im Schiebeflügel eingebunden
  • Intelligente Steuerung mit Lastabschaltung
  • Einfache Lernfahrt und automatischer Sicherheitsabstand
Stadler Innentueren Hebeschiebestueren EVOMATIC Vorteile

Vorteile auf einen Blick

  • Vollkommen verdeckt liegender, elektromotorischer
  • Antrieb Exklusiv für das System QuinLine® 84
  • Automatisches Öffnen und Schließen auf Knopfdruck
  • Spielend leichte Bedienung über ein Tastenfeld und optional über eine Funkfernbedienung
  • Modular aufgebautes System mit Zentralsteuerung
  • Einfache Inbetriebnahme und sichere Lastabschaltung
  • Integrierbar in die Smart Home-Technologie zur komfortablen Steuerung und Überwachung per Smartphone, Tablet oder PC
Stadler Innentueren Hebeschiebestueren EVOMATIC Antriebseinheit

Antriebseinheit

  • Profilintegrierter Hebeantrieb im unteren Bereich des Flügels
  • Verdeckt liegender Schiebeantrieb im oberen Mittelstoßbereich
  • Flügelgewichte bis 400 kg bewegbar
  • Notentriegelung möglich
Stadler Innentueren Hebeschiebestueren EVOMATIC Barrierefreiheit

Barrierefreiheit

  • "Barrierefreie" Schwellenausführung nach DIN 18040 bauseits möglich